" A "  C O T T A G E

monhegan island, me

Academic - Spring 2010

Monhegan Island has a history of being a retreat for artists of all kinds, writers to painters alike.  The hills are covered in little picturesque cottages, boathouses, and the occasional light house that serve as the subject matter for much of the art produced there.  This cottage is made for the twenty first century artist, visiting the island for inspiration.   It is positioned on the property so as to catch the most sunlight through the east and west facade, which are mostly glass.   This orientation will allow for maximum heat gain during the winter and cross ventilation during the summer.   The cottage itself has a roomy loft space above the working area below.  Though the frame is visible black steel for durability in the harsh climate, the facades are all clad in wood to pay homage to the vernacular architecture of the region.  Directly adjacent to the cottage is a thin black frame, outlining the skeleton of an “A” frame structure.  It is meant to provide a pure, clear space for inspiration while also framing majestic views of the surrounding earth-scape. 

05 Ext to int.jpg

LOCATION MAP


artist's retreat

07 Ext to sea.jpg

Interior space

texture and light

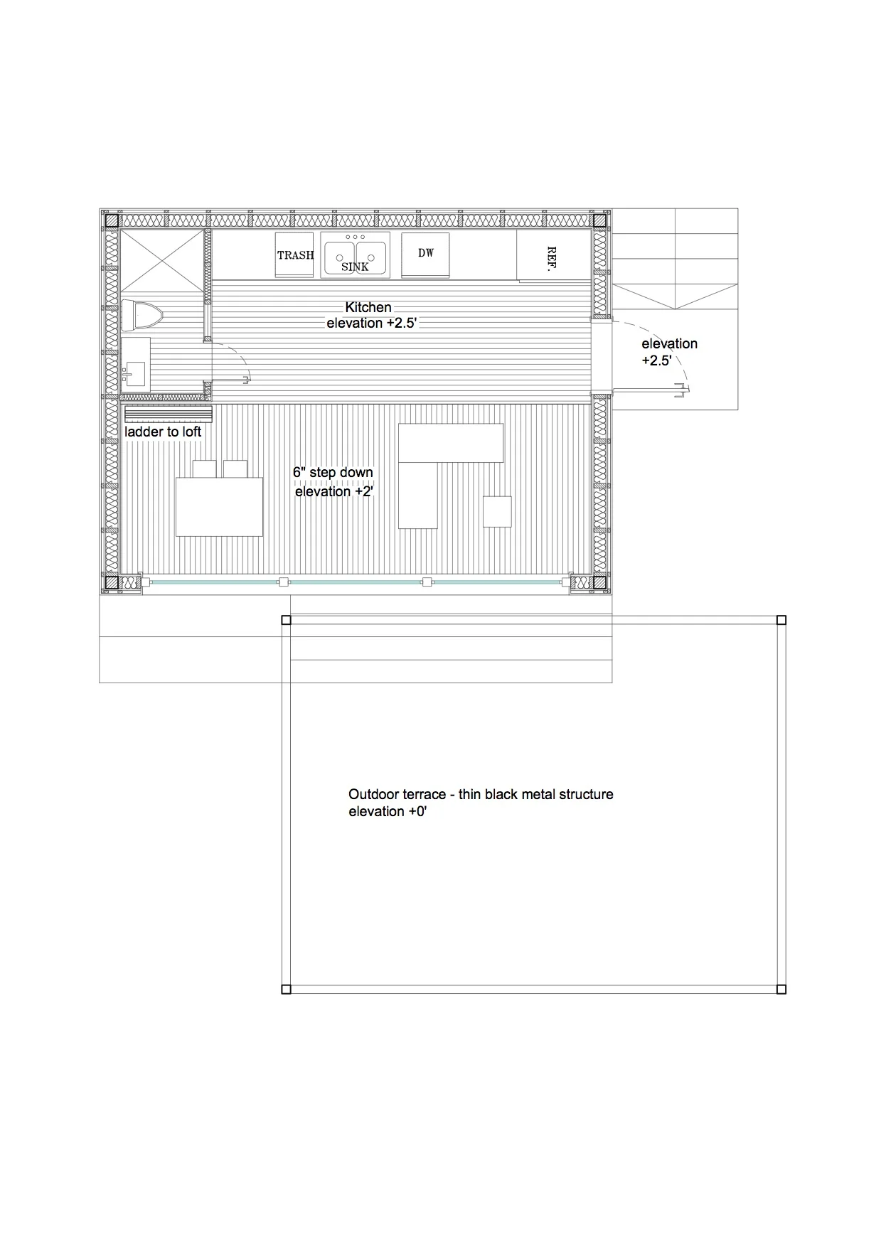
The floor plan is based on efficiently meeting the needs of an artist staying on the Island.  With the quaintness of a wooden cottage, the cabin offers all the modern amenities required. 

04 Interior up 2 side.jpg

The second, partial level provides the sleeping quarters for the artist.  A large triangular window lets in natural light while also framing picturesque views of where the rocky coast meets the Atlantic ocean. 

2nd (1).jpg